




Doppelhaus im Rohbau in Bad Salzuflen
Kontaktdaten für Bietinteressenten: Kaufmann-Forum-Immobilien GmbH,
Tel. 05751 966820.
KI Dokumentenanalyse
Diese Informationen wurde mithilfe von KI-Technologie aus den Dokumenten extrahiert. Wir empfehlen dringend deren Überprüfung.
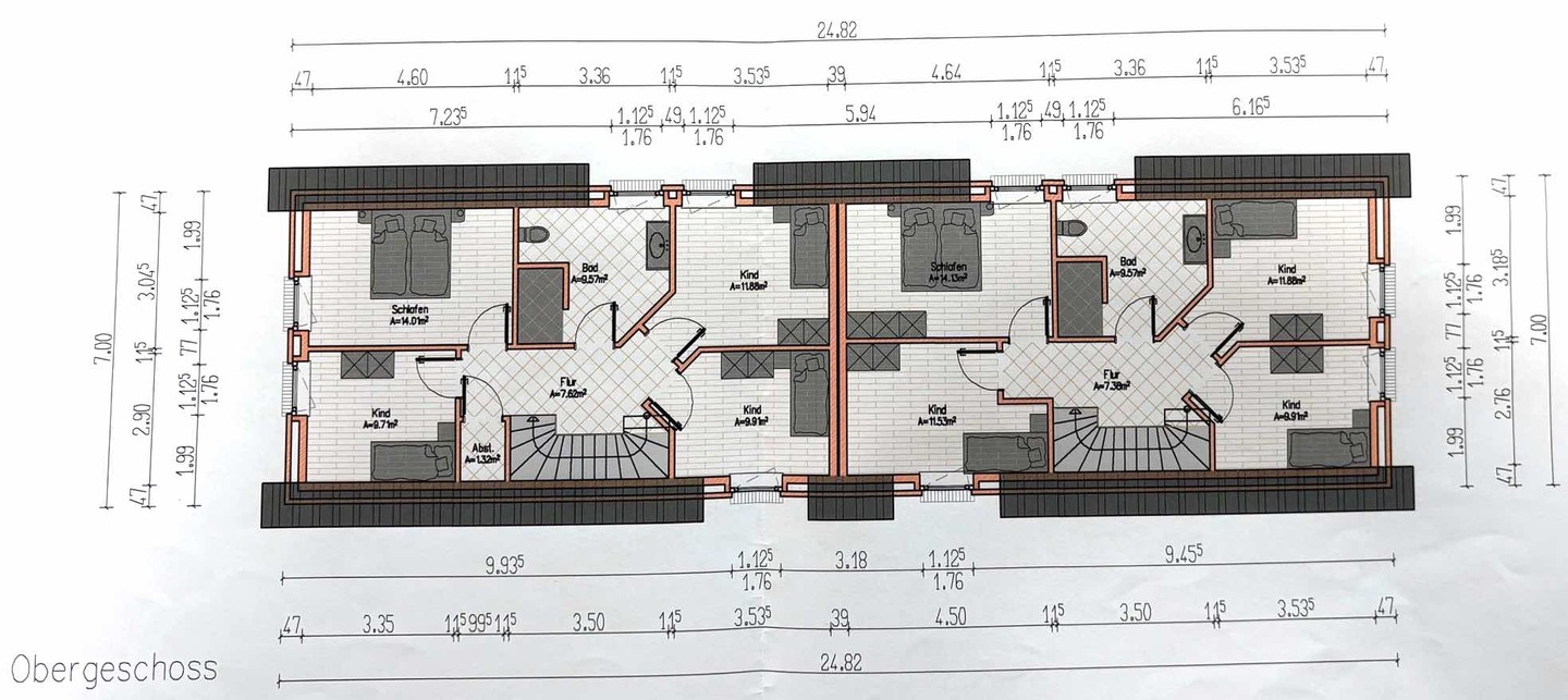
Aufteilung
Etage 1
- Diele 10,2 m²
- WC 2,5 m²
- Abstellraum 3,3 m²
- Hauswirtschaftsraum 11,1 m²
- Wohn-/Ess- und Küchenbereich 36,9 m²
Etage 2
- Flur
- Bad 9,6 m²
- Schlafzimmer 14 m²
- Kinderzimmer 1 11,5 m²
- Kinderzimmer 2 9,7 m²
- Kinderzimmer 3 11,9 m²
- Kinderzimmer 4 9,9 m²
Zustand
mangelhaftDas Gebäude befindet sich noch im Rohbauzustand und weist umfangreiche Feuchtigkeitsschäden auf, die umfangreiche Trocknungsarbeiten erfordern. Die Ursachen der Schäden sind nicht abschließend untersucht und können nur durch ein spezielles Bauschadensgutachten geklärt werden. Zudem sind mögliche Kosten zur Behebung der Baumängel und Schäden unklar, und Aussagen zu Holzzerstörern oder Rohrleitungsfraß sind ohne weitere Untersuchungen unvollständig.
Feuchtigkeit
hochFeuchtigkeitseintritt und -schäden in Teilbereichen des Rohbaus aufgrund fehlender Fenster und Außentüren und Witterungseinflüssen über 3 Jahre.
Renovierungsbedarf
hochUmfangreiche Trocknungsarbeiten am Gebäude erforderlich, da Feuchtigkeitsschäden vorliegen.
Schäden
mittelUntersuchung möglicher Ursachen für Unterhaltungsrückstände bzw. Schäden nicht erfolgt, Klärung nur durch spezielles Bauschadens-/Bausubstanzgutachten möglich.
Energieeffizienz
Energieträger
Beheizung geplant: Gas
Lage
Langenbergstraße 44a, 32108 Bad Salzuflen, Wüsten